Zeitstrahl

Die Villa Buth
eine Fabrikantenvilla des späten 19. Jahrhunderts

Errichtet, um Macht und Reichtum ihrer Bewohner auszudrücken. Der Ursprung ihrer Geschichte ist von außen noch völlig unverkennbar, wie sie da thront am Eingang zu Kirchberg. Überragend in ihrer Größe und mit ihrer reichverzierten Stuckfassade. Doch was das Äußere verspricht, ist im Inneren nicht mehr auffindbar. Keine ausladenden Räumlichkeiten, von Stuckwänden kaum noch eine Spur. Stattdessen verfaulte Tapeten und abgängige Abhangdecken. Dunkel und verwinkelt statt luftig und lichtdurchflutet. Inwieweit ihre Geschichte, ja ihre vielen Geschichten, all die verschiedenen Bewohner mit ihren unterschiedlichsten Wohnformen und Konditionen, das Gebäude geprägt haben, bleibt der Öffentlichkeit verborgen – buchstäblich verfallen die Spuren hinter verschlossener Tür.

Auf den folgenden Seiten soll der heutige Zustand der Villa Buth unter die Lupe genommen werden – eine Bauaufnahme aus der Ferne. Welcher Zeit können wir die Spuren und Strukturen zuordnen, die heute noch im Gebäude zu finden sind? Wer hat wann und vor allem wie in der Villa gelebt? Wie haben sich die Raumeindrücke verändert, wie die Wohnstrukturen, die Erschließungssituation und auch die Lebensbedingungen in der Villa allgemein. Es soll aufgezeigt werden, wie viel wir uns bei genauerer Betrachtung bereits zusammenreimen können – aber auch, wo Fragezeichen bleiben und was wir alles noch nicht wissen. Letztendlich kann nur eine fachliche Bauaufnahme am Objekt fundierte Antworten geben.


Eine Bauaufnahme aus der Ferne
– wie kann das klappen?

Für die Analyse der Bausubstanz war es uns nicht möglich, das Gebäude zu betreten – ja, zu Beginn unserer Arbeit konnten wir nicht einmal näher an die Villa herantreten, als die Mauer es zuließ.

Wie also kann eine Bauaufnahme aus der Ferne klappen?

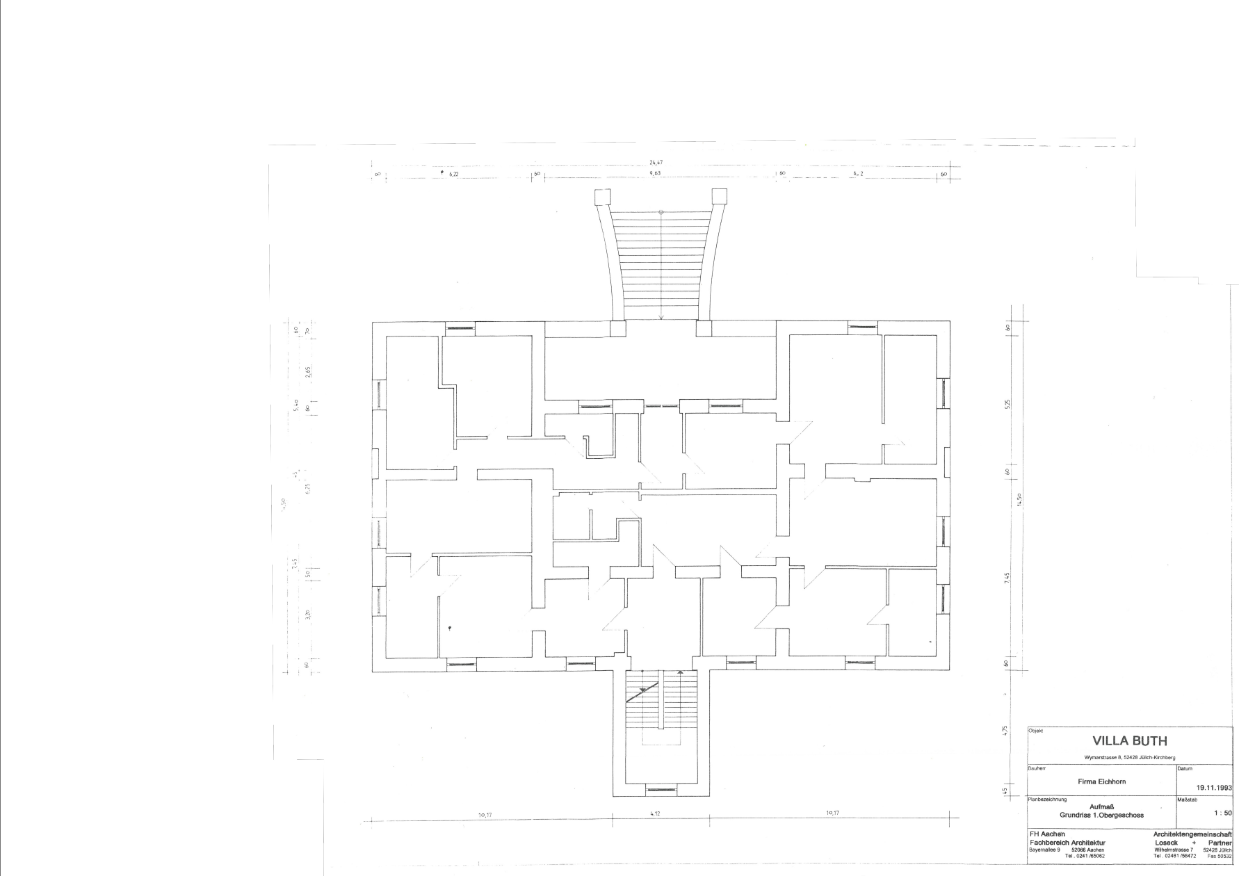
Grundlage unserer Arbeit waren zunächst einmal Grundriss- und Ansichtszeichnungen, die bei einem Bauaufmaß der FH Aachen, Fachbereich Architektur, in Kooperation mit der Architektengemeinschaft Loseck + Partner im Jahr 1993 entstanden.

Darüber hinaus stand uns Bild- und Videomaterial aus verschiedensten Quellen zur Verfügung, darunter:

  • „Lost-Places“ Videos und Foren im Internet
  • Dokumente zum Objekt, wie: die Denkmaleintragung von 1990/2011 sowie auch der Antrag auf Abbruch und Streichung von der Denkmalliste von 2023
  • Archivmaterialien
  • Fotomaterial, das uns von vielen freundlichen Menschen zur Verfügung gestellt wurde

Zurück

Weiter